文章詳情頁
SolidWorks2016怎么畫軸呢?
瀏覽:200日期:2024-05-02 14:51:53
下面給大家介紹的是SolidWorks2016怎么畫軸的方法,喜歡的朋友可以關注好吧啦網一起學SolidWorks知識哦!
第1步、打開SolidWorks2016軟件,點擊新建零件模型。選擇前視基準面,繪制草圖。

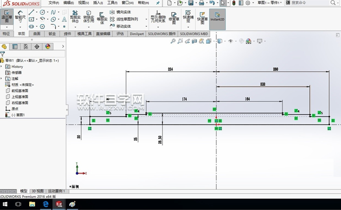
第2步、繪制下面軸的一半平面圖出來。

第3步、繪制好了,進行旋轉功能。

第4步、設置旋轉參數。如旋轉軸,旋轉角度為360度。

第5步、然后軸就旋轉完成了。

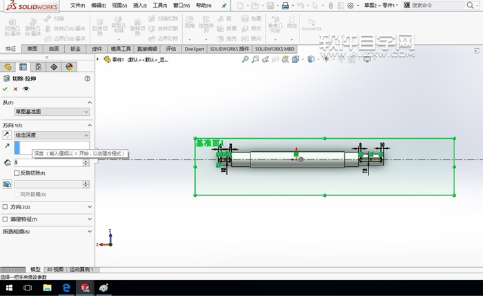
第6步、選擇上視基準面。

第7步、繪制軸的糟平面圖。

第8步、繪制好了,進行拉伸處理。

第9步、拉伸的同時進行布爾運算。

第10步、然后進行倒角處理。

第11步、設置倒角的參數。

第12步、然后軸的倒就倒出來了。

上一條:SolidWorks畫藍球的方法下一條:UG怎么進行螺絲裝配
相關文章:
排行榜

網公網安備